Farmhouse CDC Plans for Fast Approval by DMR Designs

CDC HOUSE PLANS EXAMPLE 

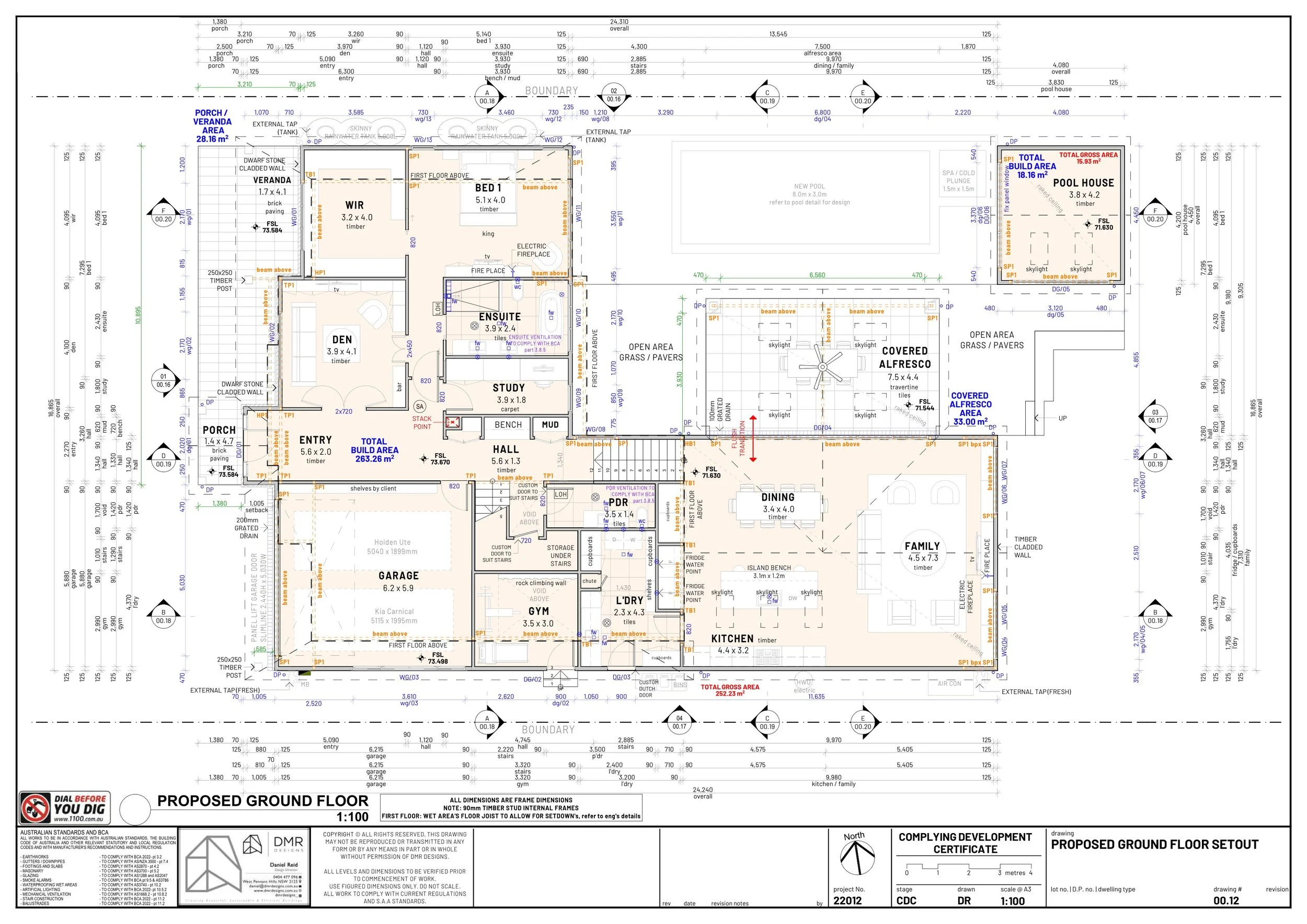
House Design TS350

Lot Width 17.5m+

503m2 total build area -

388m2 GFA

6 bedrooms

5 bathrooms

3 living areas

CDC plans for farmhouse design TS350 by DMR Designs, tailored for a 17.5m+ lot width with a 503m² total build area and 388m² GFA, showcasing spacious rural living.
Farmhouse CDC plan TS350 by DMR Designs for a 17.5m+ wide lot, featuring a 503m² total build area and 388m² GFA, with a focus on open rural living and modern functionality.
CDC plan for farmhouse design TS350 by DMR Designs, suited for a 17.5m+ lot width with a 503m² total build area and 388m² GFA, blending modern comfort with rural charm.
Farmhouse CDC plan TS350 by DMR Designs, designed for a 17.5m+ lot with 503m² total build area and 388m² GFA, emphasizing spacious layouts and rural lifestyle appeal.
DMR Designs' CDC farmhouse plan TS350 for a 17.5m+ lot, featuring a 503m² total build area and 388m² GFA, crafted for expansive, family-friendly rural living.
CDC farmhouse plan TS350 by DMR Designs, created for a 17.5m+ wide lot with 503m² total build area and 388m² GFA, showcasing a functional and elegant rural home design.
DMR Designs’ TS350 CDC farmhouse home design for a 17.5m+ lot, featuring a 503m² total build and 388m² GFA, offering spacious interiors with a modern rural feel.
CDC home plan TS350 by DMR Designs, a spacious
Farmhouse CDC plan TS350 by DMR Designs, tailored for a 17.5m+ lot with a 503m² total build and 388m² GFA, designed for modern country living with open, flowing spaces.
CDC farmhouse plan TS350 by DMR Designs, crafted for a 17.5m+ wide lot with a 503m² build area and 388m² GFA, blending rural charm with contemporary design elements.
TS350 CDC farmhouse design by DMR Designs for a 17.5m+ wide lot, offering 503m² of total build area and 388m² GFA, ideal for spacious and modern country living.
DMR Designs' CDC plan for farmhouse TS350, suited to a 17.5m+ lot, featuring a 503m² total build and 388m² GFA with a focus on functional, modern rural home design.
CDC farmhouse home plan TS350 by DMR Designs, designed for a 17.5m+ lot with 503m² total build area and 388m² GFA, offering a spacious, modern country-style layout.
Farmhouse house design TS350 by DMR Designs, part of CDC plans for a 17.5m+ lot, offering 503m² total build area and 388m² GFA with a spacious, modern rural layout.
CDC rural home plan TS350 by DMR Designs, designed for 17.5m+ wide lots with a 503m² total build area and 388m² GFA, offering a modern and spacious farmhouse layout.
TS350 CDC farmhouse plan by DMR Designs, tailored for a 17.5m+ lot with a 503m² total build area and 388m² GFA, showcasing spacious design and contemporary rural features.
DMR Designs' CDC farmhouse layout TS350, ideal for a 17.5m+ wide lot, offering 503m² of total build area and 388m² GFA with a focus on open-plan rural living.
CDC house plan TS350 by DMR Designs, created for a 17.5m+ lot with a 503m² total build area and 388m² GFA, offering a modern farmhouse design with generous living spaces.
Farmhouse CDC house design TS350 by DMR Designs for a 17.5m+ wide lot, featuring a 503m² build area and 388m² GFA, designed for contemporary rural family living.
CDC rural house plan TS350 by DMR Designs, tailored for a 17.5m+ lot with 503m² total build area and 388m² GFA, offering a blend of spacious design and modern farmhouse style.
Farmhouse CDC plan TS350 by DMR Designs, designed for a 17.5m+ wide lot with 503m² total build area and 388m² GFA, featuring a modern rural layout with spacious living areas.
CDC plan TS350 by DMR Designs, a modern farmhouse design for a 17.5m+ lot with 503m² total build area and 388m² GFA, emphasizing open-plan rural living and functionality.
TS350 farmhouse home design by DMR Designs under CDC guidelines, created for 17.5m+ wide lots with a 503m² build area and 388m² GFA, perfect for modern rural lifestyles.
DMR Designs’ TS350 farmhouse CDC plan, ideal for a 17.5m+ lot with 503m² total build area and 388m² GFA, showcasing a contemporary rural home layout with ample space.
Updated CDC house design TS350 by DMR Designs, suited for a 17.5m+ lot with 503m² total build and 388m² GFA, offering a refined and spacious farmhouse layout.
TS350 rural home plan by DMR Designs under CDC approval, tailored for a 17.5m+ lot with 503m² total build area and 388m² GFA, combining comfort with a modern farmhouse aesthetic.
DMR Designs CDC plan for a modern TS350 house on a 17.5m wide lot, featuring a total build area of 503m² and 388m² GFA.
Page 28 of DMR Designs CDC plans for the TS350 house design, tailored to a 17.5m+ lot with 503m² total build area and 388m² GFA.
DMR Designs CDC plan for the TS350 modern home, designed for a 17.5m+ lot, showing structural layout with a 503m² total build and 388m² GFA.
Page 30 of the CDC plans by DMR Designs for the TS350 house, optimized for a 17.5m+ lot with detailed layout of the 503m² build and 388m² GFA.
DMR Designs CDC plan for the TS350 modern home on a 17.5m+ wide lot, highlighting detailed construction notes for the 503m² build and 388m² GFA.
Page 32 of the CDC plans by DMR Designs for the TS350 house design, illustrating final compliance details for a 503m² build on a 17.5m+ lot.
DMR Designs CDC plan for the TS350 home, designed for a 17.5m+ lot, showing landscape and site features for the 503m² total build area.
Page 34 of DMR Designs CDC plans for the TS350 house on a 17.5m+ wide lot, featuring external elevations and architectural finishes.
DMR Designs CDC plan page 35 for the TS350 modern home, tailored to a 17.5m+ lot, showcasing rear and side elevation details.
Page 36 of DMR Designs CDC plans for the TS350 home, featuring detailed elevation views and external material specifications for a 17.5m+ lot.
DMR Designs CDC plan page 37 for the TS350 house design, showing construction details and compliance notes for a 503m² build on a 17.5m+ wide lot.
Page 38 of the CDC plans by DMR Designs for the TS350 modern home, detailing roof plans and structural notes for a 503m² total build area.
DMR Designs CDC plan page 39 for the TS350 home, showcasing window and door schedules for a 503m² total build on a 17.5m+ wide lot.
Page 40 of the TS350 CDC plans by DMR Designs, detailing external finishes and materials for a 503m² build on a 17.5m+ wide lot.
DMR Designs CDC plan page 41 for the TS350 house, highlighting additional construction annotations for a 503m² total build on a 17.5m+ lot.
Page 42 of DMR Designs CDC plans for the TS350 home, showing energy efficiency and compliance details for a 503m² build on a 17.5m+ lot.
DMR Designs CDC plan page 43 for the TS350 modern home, outlining final approval notes and energy compliance for a 17.5m+ lot build.