Custom CDC House Design Plans by DMR Designs

 CDC PLANS EXAMPLE

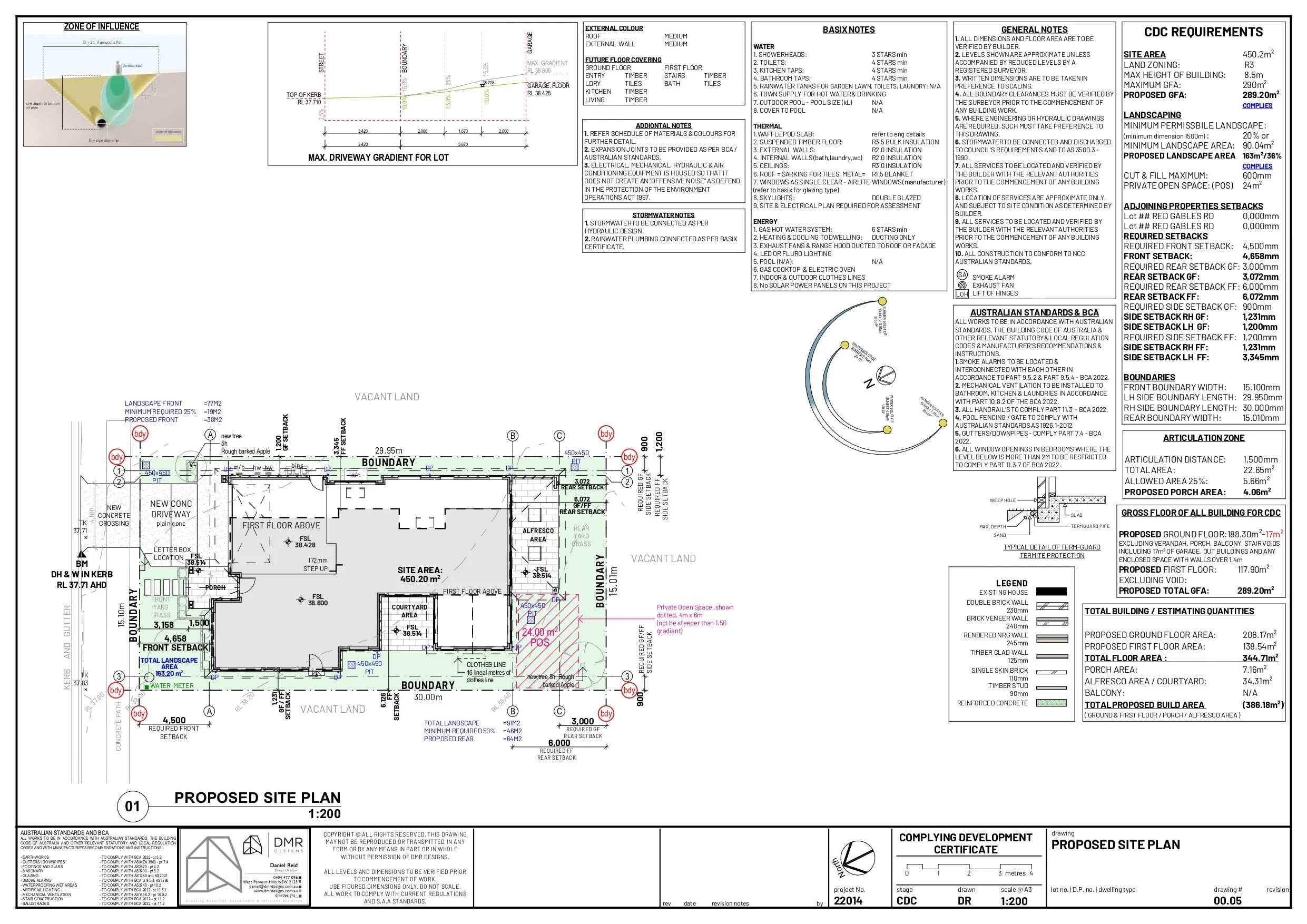
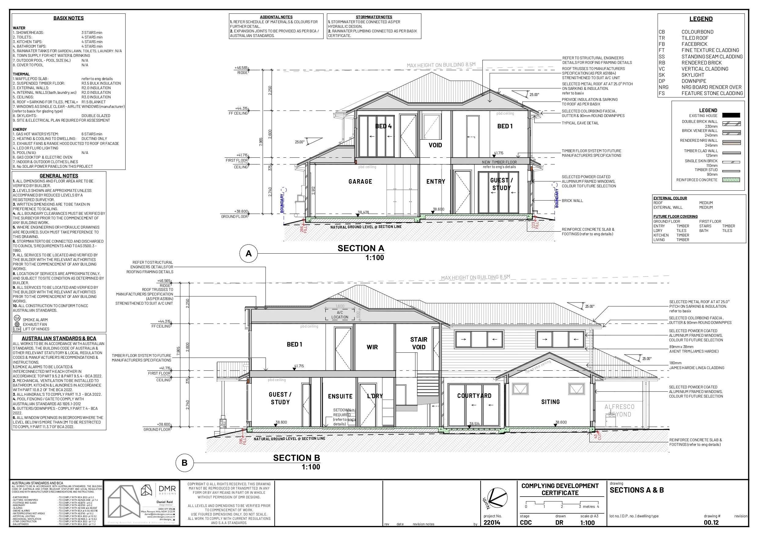
 HOUSE DESIGN TS251

Lot Width 15.0m+

386m2 total build area

289m2 GFA

5 bedrooms

3.5 bathrooms

4 living areas

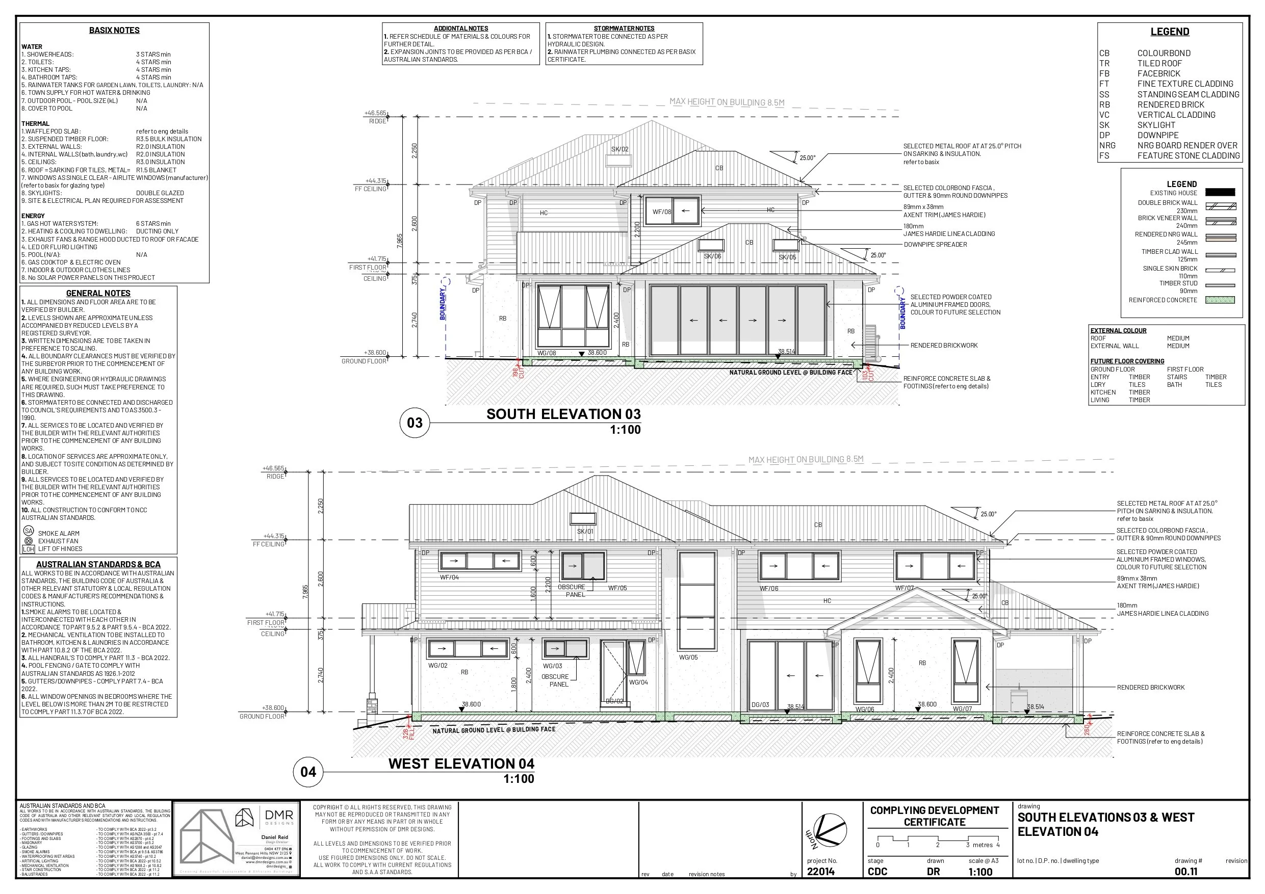
CDC plan page 1 for TS251 house design suited for 15.0m+ lot width by DMR Designs, showcasing the cover sheet with project summary and site context.
DMR Designs presents a modern 15m lot width house design TS251 with 386m² total build area and 289m² GFA, featured in CDC plans for contemporary family living.
DMR Designs showcases a spacious 15m lot width home design TS251 with 386m² total build and 289m² GFA, illustrated in CDC plans tailored for modern living.
DMR Designs highlights house design TS251 for 15m wide lots, featuring 386m² total build and 289m² GFA, as detailed in contemporary CDC planning documents.
DMR Designs features the TS251 house design for 15m wide lots with 386m² total build area and 289m² GFA, displayed in sleek CDC plans for modern families.
DMR Designs presents TS251, a modern house design for 15m wide lots with 386m² total build and 289m² GFA, featured in detailed CDC architectural plans.
DMR Designs showcases the TS251 home design for 15m lot widths, offering 386m² total build area and 289m² GFA, visualized in professional CDC plans.
DMR Designs highlights the TS251 design for 15m wide lots, featuring a 386m² total build and 289m² GFA, as illustrated in comprehensive CDC plans.
DMR Designs features the TS251 house plan for 15m lot widths, offering 386m² total build area and 289m² GFA, presented in high-quality CDC documentation.
DMR Designs presents the final view of TS251, a 15m lot width home design with 386m² total build and 289m² GFA, detailed in expertly crafted CDC plans.
DMR Designs concludes the TS251 house design series for 15m lot widths, featuring 386m² total build and 289m² GFA, shown in comprehensive CDC plan layouts.
DMR Designs showcases the TS251 design for 15m wide lots, featuring a total build area of 386m² and 289m² GFA, with precise details in CDC architectural plans.
DMR Designs presents the TS251 modern house design for 15m lot widths, offering 386m² total build area and 289m² GFA, illustrated in detailed CDC drawings.
DMR Designs features the TS251 home design suited for 15m lot widths, with a spacious 386m² total build area and 289m² GFA, showcased in CDC plan visuals.
DMR Designs showcases the final TS251 plan page, a 15m lot width home design with 386m² total build and 289m² GFA, illustrated in professional CDC plans.
DMR Designs concludes the TS251 series with a 15m lot width home design featuring 386m² total build area and 289m² GFA, detailed in final CDC documentation.
DMR Designs wraps up the TS251 house design for 15m wide lots, showcasing a 386m² total build and 289m² GFA, as presented in final CDC planning sheets.
DMR Designs presents the concluding TS251 house design page for 15m lot widths, offering 386m² total build area and 289m² GFA in detailed CDC architectural plans.
DMR Designs finalizes the TS251 home design series for 15m wide lots, featuring 386m² total build area and 289m² GFA, as captured in CDC architectural documentation.
Explore DMR Designs’ TS251 four-bedroom house design for 15m wide lots—offering a modern layout with 386m² total build area and 289m² GFA, detailed in CDC-compliant architectural plans ideal for suburban family living.
DMR Designs showcases the TS251 modern 4-bedroom house plan for 15m wide lots, featuring 386m² total build area and 289m² GFA, designed to meet CDC approval standards for functional and stylish family living.
CDC house design TS251 by DMR Designs, created for 15.0m+ wide lots with 386m² total build area and 289m² GFA, offering a smart and spacious layout for modern family living.
Updated TS251 CDC house plan by DMR Designs for 15.0m+ wide lots, featuring a 386m² total build and 289m² GFA, designed with contemporary functionality and family comfort in mind.
CDC-approved TS251 home plan by DMR Designs, designed for 15.0m+ lot widths with 386m² total build area and 289m² GFA, showcasing efficient space use and modern design features.
DMR Designs' TS251 CDC floorplan for 15.0m+ wide lots, with a 386m² total build area and 289m² GFA, offering a well-balanced layout for stylish and practical living.
TS251 home design by DMR Designs under CDC compliance, crafted for 15.0m+ wide lots with a 386m² total build and 289m² GFA, highlighting a modern and spacious layout.